70 nya hyresrätter i Tumba Port

Illustration av nybyggnadsprojekt i Tumba

På en höjd strax intill Tumba centrum växer Tumba Port fram – ett modernt bostadshus om två sammanlänkade huskroppar. Här bor du med ett högt och fritt läge och vidsträckta vyer över både bebyggelse, skog och åkermark.

Huset rymmer främst yteffektiva och välplanerade smålägenheter om 1–2 rum och kök om 35–47 kvm, samt en bostad om 3 rum och kök. Lägenheterna är genomgående med generöst ljusinsläpp från två väderstreck, vilket skapar en ljus och luftig känsla. Några av bostäderna får egen balkong, perfekt för morgonkaffet eller en avkopplande kvällsstund.

Planlösningarna är öppna och sociala med smarta kvadratmeter som gör det enkelt att möblera och trivas. Lägenheterna nås via loftgångar som bidrar till en trivsam och levande gårdsmiljö.

Arkitekturen präglas av en mönstersatt tegelfasad som ger huset ett karaktärsfullt uttryck, kompletterat med träpanel i entréplan. Entrébalkonger utformas med glas och plåtraster som ger ett modernt och lätt uttryck.

Högst upp på den lägre av huskropparna skapas en gemensam takterrass – en naturlig mötesplats för de boende med härlig utsikt över omgivningarna. I bottenvåningen finns även praktiska gemensamma funktioner såsom tvättstuga och cykelrum.

Om projektet

Inflyttning: Preliminärt i slutet av 2026

Adress: Gröndalsvägen 24, Tumba

Antal lägenheter: 70 st

  • 37 st 1 rum och kök 35  kvm
  • 7 st 1 rum och kök 40 kvm
  • 6 st 2 rum och kök 45 kvm
  • 17 st 2 rum och kök 46 kvm
  • 2 st 2 rum och kök 47 kvm
  • 1 st 3 rum och kök 69 kvm

Entreprenör: Bygg R1 AB 

Sök bostad i Tumba Port

Vill du hyra lägenhet i Tumba? Då är det viktigt att du står i bostadskö – alla våra lägenheter förmedlas via vår egen bostadskö eller genom Bostadsförmedlingen i Stockholm.

Ju längre kötid du har, desto större chans har du att få en lägenhet i Tumba Port. Om du inte redan står i kö, är det hög tid att registrera dig – så maximerar du dina chanser att få ett förstahandskontrakt på en hyresrätt i centrala Tumba.

Ställ dig i Botkyrkabyggens bostadskö

Senaste nytt om Tumba Port

Visa

Personer i varselkläder på en byggarbetsplats.

260203

Taklagsfest

Nu är taket på plats. Det firades traditionsenligt med taklagsfest på bygget. Nu fortsätter vi med arbeten inne i huset. I visningslägenheten har vi redan påbörjat målningen av väggar och tak.

En byggkran och bygget av ett flerbostadshus

260115

Stommen klar, nu bygger vi taket

I slutet av december 2025 var alla våningar på plats. Efter en välförtjänt julledighet fortsätter vi nu med taket och takterassen. När det är klart, är huset tätt och vi kan börja jobba inne i huset.

En byggkran och bygget av ett flerbostadshus

251126

Snart är stommen klar

Stommontaget har pågått sedan juni och nu är det snart klart.

Se film om stommonteringen

Stomresning av ett flerfamiljshus

250618

Stommen monteras

Nu händer det grejer i centrala Tumba. Bygget av Tumba Port har pågått sedan februari, i maj gjöt vi grundplattan och i juni började stommen att resas. Hela tio våningar ska på plats.

En betongbil på en byggarbetsplats

250516

Nu gjuter vi grundplattan

Vi är inne i mitten av maj och nu är det dags att gjuta grundplattan som huset sedan ska byggas på. Detta görs i två etapper. När plattan är klar är det äntligen dags att montera stommen, då kommer det verkligen att hända grejer.

Se film om gjutningen

En stor lyftkran mot en blå himmel

250407

Byggkranen monterad

Den stora tornkranen som ska lyfta upp material till byggarbetsplatsen har monterats. Kanske bevittnade du arbetarna som balanserade högt högt ovan marken för att montera ihop de olika delarna. Inget jobb för den höjdrädde.

 

Pålning i marken inför bygget av Tumba Port

250224

Pålning av marken

Just nu håller vi att påla i marken. Det gör vi för att huset ska få en stabil grund att stå på. När pålningen är klar är det dags att gjuta bottenplattan.

Se film om pålningen

En grävskopa arbetar med att förbereda marken inför bygge av hus

250203

Markarbete pågår

Nu påbörjar vi det förberedande arbetet inför bygget av Tumba Port. Vi kommer bland annat att ta ner en del träd och utföra markarbeten. Därför stängs trappan mellan busstorget och Gröndalsvägen av. Trappan kommer att vara avstängd under hela den tid som arbetet med bygget av Tumba Port pågår.

Se film om markarbetet

Tre personer kastar upp jord från en jordhög med en gemensam spade.

241127

Spaden är satt i jorden

Botkyrkabyggen har tagit första spadtaget för bygget av 70 hyresrätter i Tumba Port i Tumba centrum. Stina Lundgren, kommunstyrelsens ordförande (M) i Botkyrka, Elisabeth Uddén, styrelseordförande (OS) i Botkyrkabyggen och Fredrik Vitrera Luiga, tf VD för Botkyrkabyggen, tog spadtaget gemensamt.

Läs mer

Visualisering av Tumba Port

240924

70 hyresrätter byggs i Tumba

Botkyrkabyggen påbörjar byggnation av 70 hyresrätter i Tumba Port centralt i Tumba centrum. Beslutet fattades av Botkyrkabyggens styrelse på styrelsemötet 23 september.

Läs mer

 

 

Tidplan

Visa
En vit bock i en orange cirkel Första spadtaget togs i november 2024.
En vit bock i en orange cirkel Markarbeten påbörjades i början av februari 2025.
En vit bock i en orange cirkel Vi utför pålning för att stabilisera marken inför grundläggningen.
En vit bock i en orange cirkel Byggkranen monteras på byggplatsen.
En vit bock i en orange cirkel Gjutning av grundplatta.
En vit bock i en orange cirkel Stommen börjar monteras.
En vit bock i en orange cirkel Taket är på plats.
En vit bock i en orange cirkel Invändinga arbeten påbörjas (innerväggar, eldragning, vatten och avlopp).
En vit bock i en ljusorange cirkel Murning av fasad.
En vit bock i en ljusorange cirkel Golvläggning samt målning av väggar och tak.
En vit bock i en ljusorange cirkel Kök och badrum monteras.
En vit bock i en ljusorange cirkel Gården färdigställs.
En vit bock i en ljusorange cirkel Inflytt.

Bilder

Visa

En visualisering av ett vardagsrum med vita väggar, grön matta, ljusa trämöbler.

Kanske är det här ditt nya vardagsrum.

Visualisering av ett kök med vita luckor och vitt kakel.

Kök från Marbodal med vita köksluckor och vitt kakel. På golvet ligger en klassisk ekparkett.

En visualisering av ett badrum med vitt kakel på väggarna och grå klinker på golvet.

Badrummen får helkaklade väggar med klinkergolv.

Visualisering av Tumba Port

Mysig entrégård.

Visualisering av Tumba Port

Härlig takterass för alla boende i huset.

Visualisering av Tumba Port

Loftgångar mot entrégården.

Visualisering av Tumba Port

Tumba Port sett från bron på Hågelbyleden.

Visualisering av Tumba Port

Teglad fasad.

Bostäderna

Visa

PLAN 1 (entréplan)

1001 Lägenhet 2 RoK, 46 kvm Typ 4:4 - 12 313 kr/månad
1002 Lägenhet 2 RoK, 46 kvm Typ 4 - 12 313 kr/månad
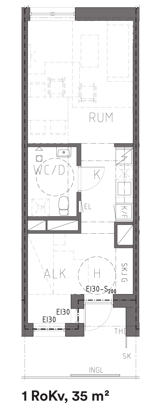
1003 Lägenhet 1 RoK, 35 kvm Typ 1 - 9 879 kr/månad
1004 Lägenhet 3 RoK, 69 kvm Typ 5:2 - 16 181 kr/månad

PLAN 2 (1tr)

1101 Lägenhet 2 RoK, 45 kvm Typ 3 - 12 169 kr/månad
1102 Lägenhet 1 RoK, 35 kvm Typ 1-S - 9 879 kr/månad
1103 Lägenhet 1 RoK, 35 kvm Typ 1-S - 9 879 kr/månad
1104 Lägenhet 1 RoK, 35 kvm Typ 1-S - 9 879 kr/månad
1105 Lägenhet 2 RoK, 46 kvm Typ 4:2 - 12 313 kr/månad
1106 Lägenhet 2 RoK, 46 kvm Typ 4:1 - 12 313 kr/månad
1107 Lägenhet 1 RoK, 35 kvm Typ 1:1 - 9 879 kr/månad
1108 Lägenhet 1 RoK, 35 kvm Typ 1:1 - 9 879 kr/månad
1109 Lägenhet 1 RoK, 40 kvm Typ 2 - 10 597 kr/månad

PLAN 3 (2tr)

1201 Lägenhet 2 RoK, 45 kvm Typ 3:1 - 12 169 kr/månad
1202 Lägenhet 1 RoK, 35 kvm Typ 1:1-S - 9 879 kr/månad
1203 Lägenhet 1 RoK, 35 kvm Typ 1:1-S - 9 879 kr/månad
1204 Lägenhet 1 RoK, 35 kvm Typ 1:1-S - 9 879 kr/månad
1205 Lägenhet 2 RoK, 46 kvm Typ 4:3 - 12 313 kr/månad
1206 Lägenhet 2 RoK, 46 kvm Typ 4 - 12 313 kr/månad
1207 Lägenhet 1 RoK, 35 kvm Typ 1 - 9 879 kr/månad
1208 Lägenhet 1 RoK, 35 kvm Typ 1 - 9 879 kr/månad
1209 Lägenhet 1 RoK, 40 kvm Typ 2:1 - 10 597 kr/månad

PLAN 4 (3tr)

1301 Lägenhet 2 RoK, 45 kvm Typ 3 - 12 169 kr/månad
1302 Lägenhet 1 RoK, 35 kvm Typ 1-S - 9 879 kr/månad
1303 Lägenhet 1 RoK, 35 kvm Typ 1-S - 9 879 kr/månad
1304 Lägenhet 1 RoK, 35 kvm Typ 1-S - 9 879 kr/månad
1305 Lägenhet 2 RoK, 46 kvm Typ 4:2 - 12 313 kr/månad
1306 Lägenhet 2 RoK, 46 kvm Typ 4:1 - 12 313 kr/månad
1307 Lägenhet 1 RoK, 35 kvm Typ 1:1 - 9 879 kr/månad
1308 Lägenhet 1 RoK, 35 kvm Typ 1:1 - 9 879 kr/månad
1309 Lägenhet 1 RoK, 40 kvm Typ 2 - 10 597 kr/månad

PLAN 5 (4tr)

1401 Lägenhet 2 RoK, 45 kvm Typ 3:1 - 12 169 kr/månad
1402 Lägenhet 1 RoK, 35 kvm Typ 1:1-S - 9 879 kr/månad
1403 Lägenhet 1 RoK, 35 kvm Typ 1:1-S - 9 879 kr/månad
1404 Lägenhet 1 RoK, 35 kvm Typ 1:1-S - 9 879 kr/månad
1405 Lägenhet 2 RoK, 46 kvm Typ 4:3 - 12 313 kr/månad
1406 Lägenhet 2 RoK, 46 kvm Typ 4 - 12 313 kr/månad
1407 Lägenhet 1 RoK, 35 kvm Typ 1 - 9 879 kr/månad
1408 Lägenhet 1 RoK, 35 kvm Typ 1 - 9 879 kr/månad
1409 Lägenhet 1 RoK, 40 kvm Typ 2:1 - 10 597 kr/månad

PLAN 6 (5tr)

1501 Lägenhet 2 RoK, 45 kvm Typ 3 - 12 169 kr/månad
1502 Lägenhet 1 RoK, 35 kvm Typ 1-S - 9 879 kr/månad
1503 Lägenhet 1 RoK, 35 kvm Typ 1-S - 9 879 kr/månad
1504 Lägenhet 1 RoK, 35 kvm Typ 1-S - 9 879 kr/månad
1505 Lägenhet 2 RoK, 46 kvm Typ 4:2 - 12 313 kr/månad
1506 Lägenhet 2 RoK, 46 kvm Typ 4:1 - 12 313 kr/månad
1507 Lägenhet 1 RoK, 35 kvm Typ 1:1 - 9 879 kr/månad
1508 Lägenhet 1 RoK, 35 kvm Typ 1:1 - 9 879 kr/månad
1509 Lägenhet 1 RoK, 40 kvm Typ 2 - 10 597 kr/månad

PLAN 7 (6tr)

1601 Lägenhet 2 RoK, 45 kvm Typ 3:1 - 12 169 kr/månad
1602 Lägenhet 1 RoK, 35 kvm Typ 1:1-S - 9 879 kr/månad
1603 Lägenhet 1 RoK, 35 kvm Typ 1:1-S - 9 879 kr/månad
1604 Lägenhet 1 RoK, 35 kvm Typ 1:1.S - 9 879 kr/månad
1605 Lägenhet 2 RoK, 46 kvm Typ 4:3 - 12 313 kr/månad
1606 Lägenhet 2 RoK, 46 kvm Typ 4 - 12 313 kr/månad
1607 Lägenhet 1 RoK, 35 kvm Typ 1 - 9 879 kr/månad
1608 Lägenhet 1 RoK, 35 kvm Typ 1 - 9 879 kr/månad
1609 Lägenhet 1 RoK, 40 kvm Typ 2:1 - 10 597 kr/månad

PLAN 8 (7tr)

1701 Lägenhet 2 RoK, 46 kvm Typ 4:1 - 12 313 kr/månad
1702 Lägenhet 1 RoK, 35 kvm Typ 1:1 - 9 879 kr/månad
1703 Lägenhet 1 RoK, 35 kvm Typ 1:1 - 9 879 kr/månad
1704 Lägenhet 1 RoK, 40 kvm Typ 2 - 10 597 kr/månad

PLAN 9 (8tr)

1801 Lägenhet 2 RoK, 46 kvm Typ 4 - 12 313 kr/månad
1802 Lägenhet 1 RoK, 35 kvm Typ 1 - 9 879 kr/månad
1803 Lägenhet 1 RoK, 35 kvm Typ 1 - 9 879 kr/månad
1804 Lägenhet 2 RoK, 47 kvm Typ 5 - 12 455 kr/månad

PLAN 10 (9tr)

1901 Lägenhet 2 RoK, 46 kvm Typ 4:1 - 12 313 kr/månad
1902 Lägenhet 1 RoK, 35 kvm Typ 1:1 - 9 879 kr/månad
1903 Lägenhet 1 RoK, 35 kvm Typ 1:1 - 9 879 kr/månad
1904 Lägenhet 2 RoK, 47 kvm Typ 5:1 - 12 455 kr/månad

Området

Visa

I Tumba Port bor du i princip så centralt i Tumba som det går med shopping, service och kommunikationer inom bekvämt räckhåll.

Skolor och förskolor

I Tumba finns flera förskolor samt både kommunala och fristående grundskolor. Tumba Gymnasium ligger ett stenkast från centrum, liksom yrkeshögskolan Xenter.

Kultur och fritid

För den som är intresserad av kultur finns Tumbascenen som bjuder på filmvisning och liveföreställningar. I Tumba finns också ett stort utbud för den sportintresserade, både fotbollsplaner, ishall och sporthall ligger centralt. Men det är också nära till utegym, motionsspår och strövområden. Närmaste badhus finns i Storvreten.

Kommunikationer

I direkt anknytning till Tumba centrum ligger pendeltågs- och busstation. Pendeltåget tar dig till centrala Stockholm på ca 25 minuter. Tar du istället tåget söderut når du Södertälje på en kvart. Från Tumba utgår en rad busslinjer som tar dig till övriga delar av kommunen.

Miljöklassning

Visa

Tumba Port byggs utefter kriterierna i Miljöbyggnad Silver.